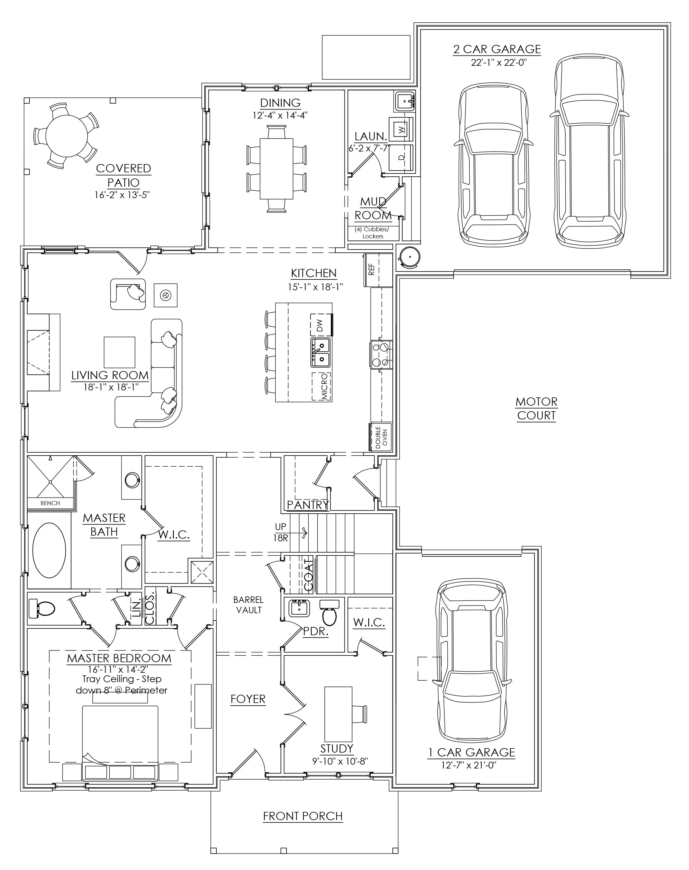
THE HELENA PLAN
3324 Square Feet
4 Beds/ 3.5 Baths
58’- 6” Wide X 69’-2” Deep
*Elevation A Floor Plan shown- Alternate Elevation subject to window and footprint changes.



3324 Square Feet
4 Beds/ 3.5 Baths
58’- 6” Wide X 69’-2” Deep
*Elevation A Floor Plan shown- Alternate Elevation subject to window and footprint changes.